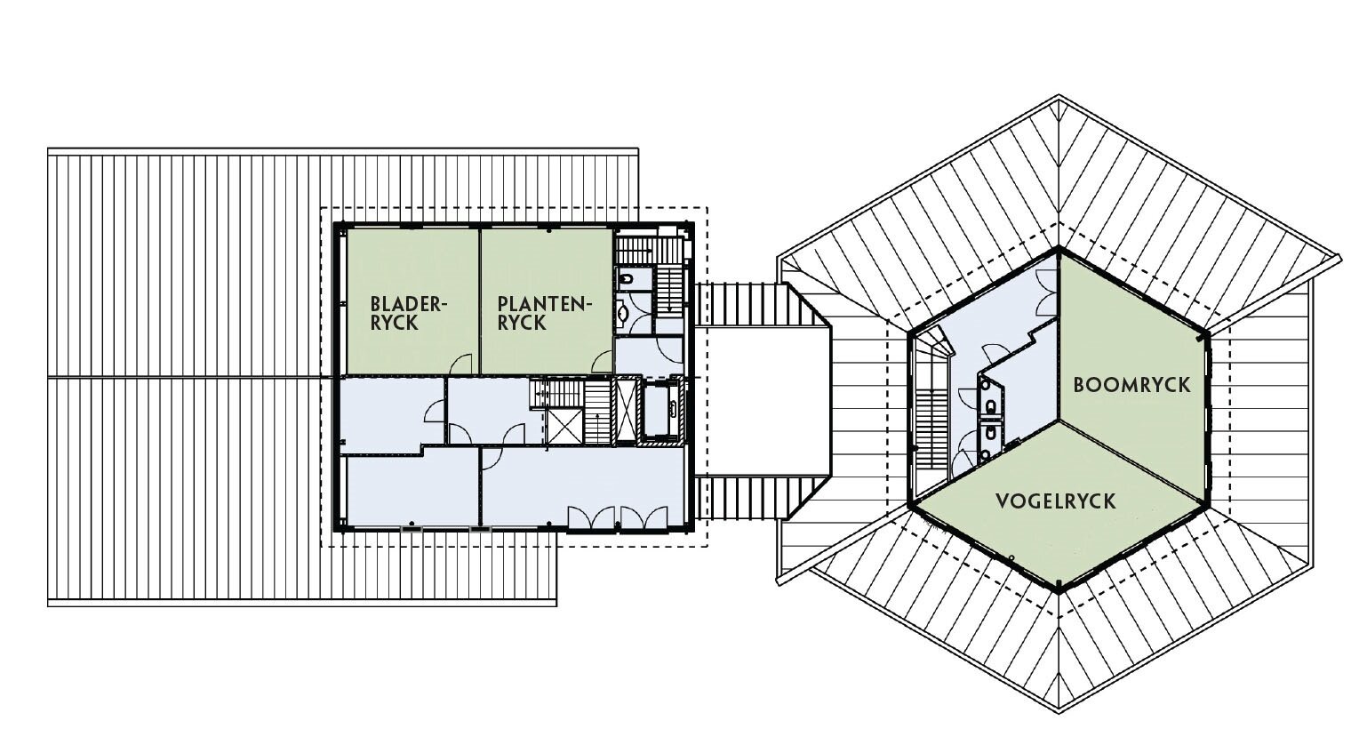
Plattegrond benedenverdieping
Plattegrond bovenverdieping

Meer lezen
Plattegrond downloaden
Wil je één van de plattegronden downloaden om op te slaan e nte gebruiken voor jouw event? Dat kan hieronder. Wij hebben verschillende plattegronden beschikbaar. Heb je vragen? Laat het ons gerust weten.
Plattegrond benedenverdieping Weideryck als één zaal
Plattegrond benedenverdieping Weideryck opgesplitst in vier zalen
Deze bedrijven gingen je voor







Nieuwsgierig?
We leiden je graag rond bij Kamerick
Ben je al nieuwsgierig? Volg deze virtuele rondleiding voor een perfect beeld van onze locatie!


